Продається квартира Вишгородська вулиця, 4, Київ, Оболонський, Вишгородський (№ 213-186-430)
Ціна: 72 999 $

Вишгородська вулиця, 4, Київ, Оболонський, Вишгородський
Характеристики
| Ціна: | 72 999 $ |
|---|---|
| № об'єкта: | 213-186-430 |
| Кімнат: | 3 см/рз |
| Поверх: | 5 / 5 |
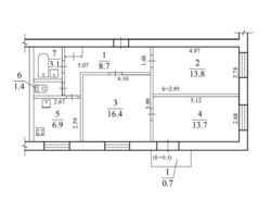
| Площа: | 65 / - / 7 м2 |
| Санвузол: | 1 роздільний |
| Балкон: | балкон |
Опис
Продаж 3к квартири Вишгородська 4
Загальна площа 65м2 Сталінка
Вашій увазі пропонується чудова квартира в Сталінці по вул.Вишгородьска 4 в будинку розташований кінотеатр Кадр, але під’їзд в якому знаходиться квартира не з сторони дороги а з боку, саме в цьому під?їзді є працююче міське бомбосховище, з водою , санвузлами і чотирма кімнатами під сховище. Кому набридли сусіди зверху наша квартира буде ідеальним рішенням вона на 5 поверсі 5 поверхового будинку, з усіма атрибутами сталінки 3-х метровими стелями, товстими цегляними стінами і великими вікнами. В помешканні зроблено капітальний ремонт поміняні комунікації і радіатори, зроблені ідеальні вишпаклювані стелі , встановленні пластикові вікна з п?яти камерним профілем і двокамерним склопакетом, шумоізоляція супер завдяки цьому. Поруч розташовані парки, сквери , ресторани, гарна розв?язка, і більш того поруч зупинка міської електрички яка їде майже через усе місто. Супер варіант заїжджай живи. По всім питанням телефонуйте проконсультую і домовимось на перегляд..















